Meiju ceļš
Projekta mērķis:
Izstrādāt kompaktu un ergonomisku trīsstāvu daudzdzīvokļu ēku, kas būtu ekonomiska gan platībā, gan būvniecības izmaksās, gan lietošanas izmaksās, tajā pašā laikā piedāvātu elegantu un mūsdienīgu ēkas veidolu.
Gala rezultāts:
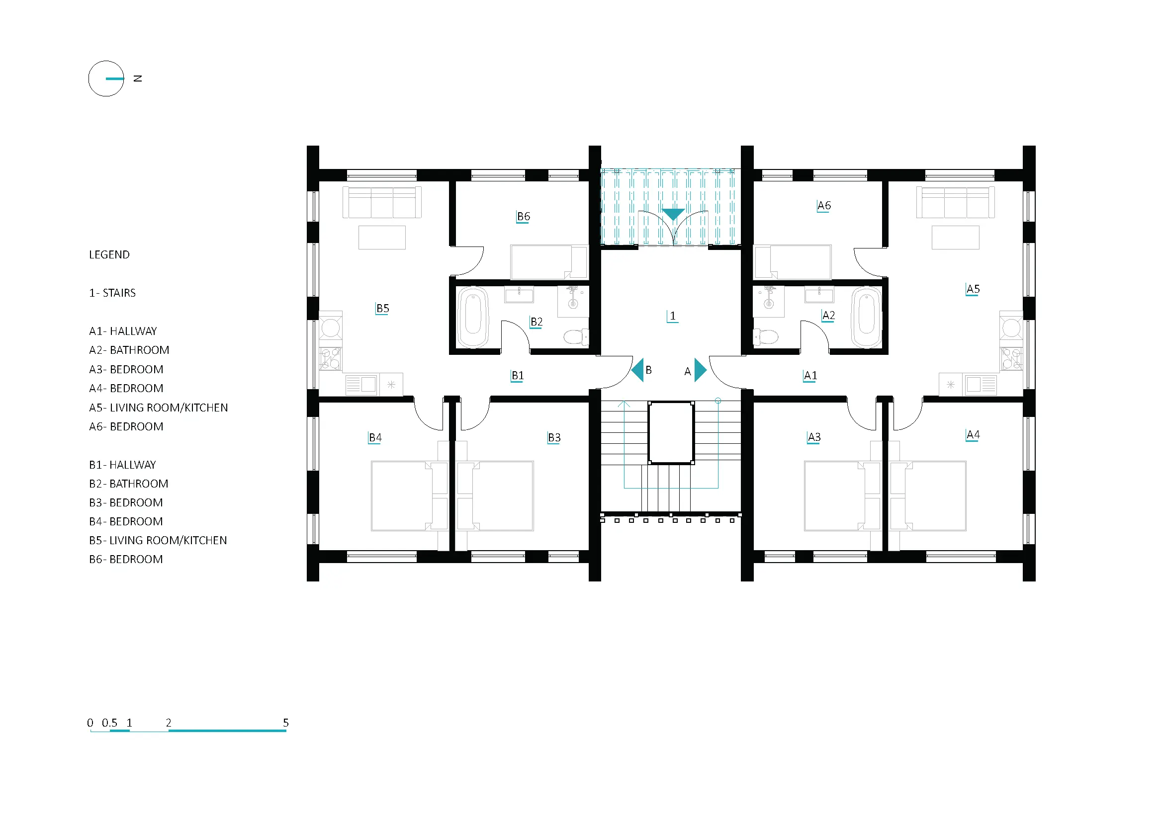
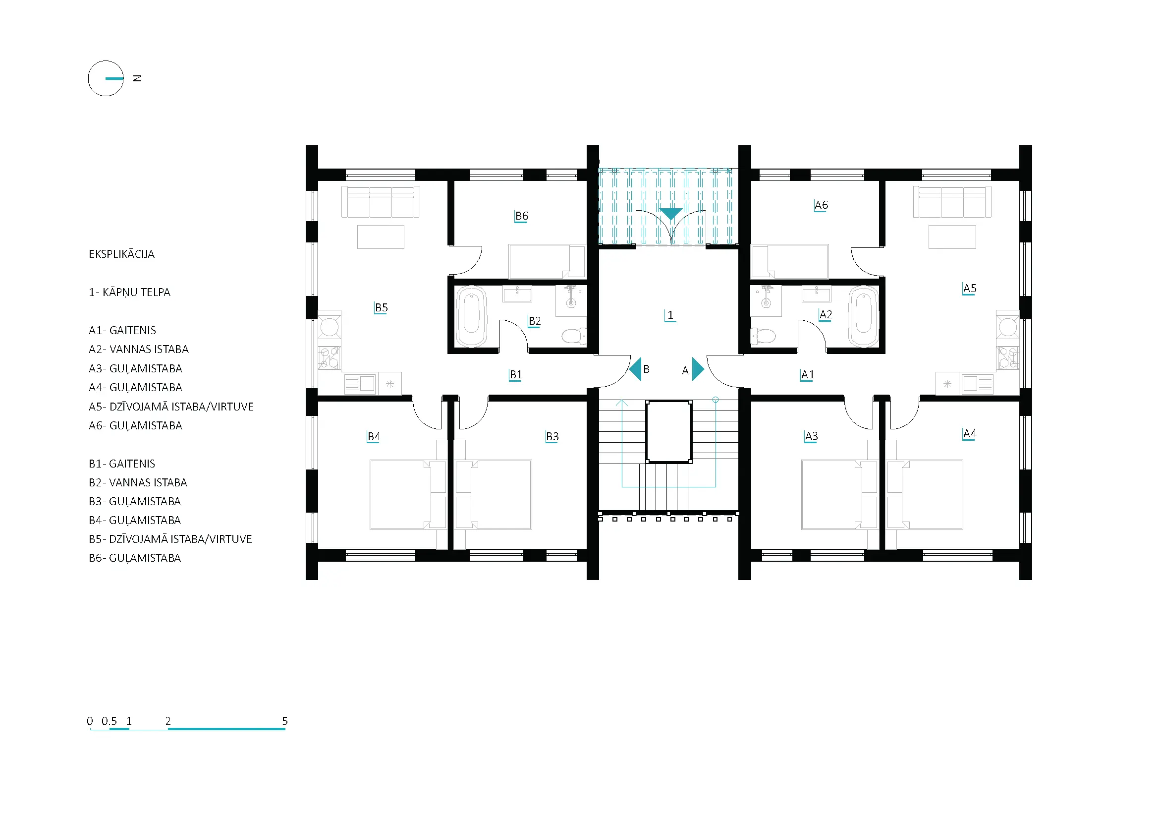
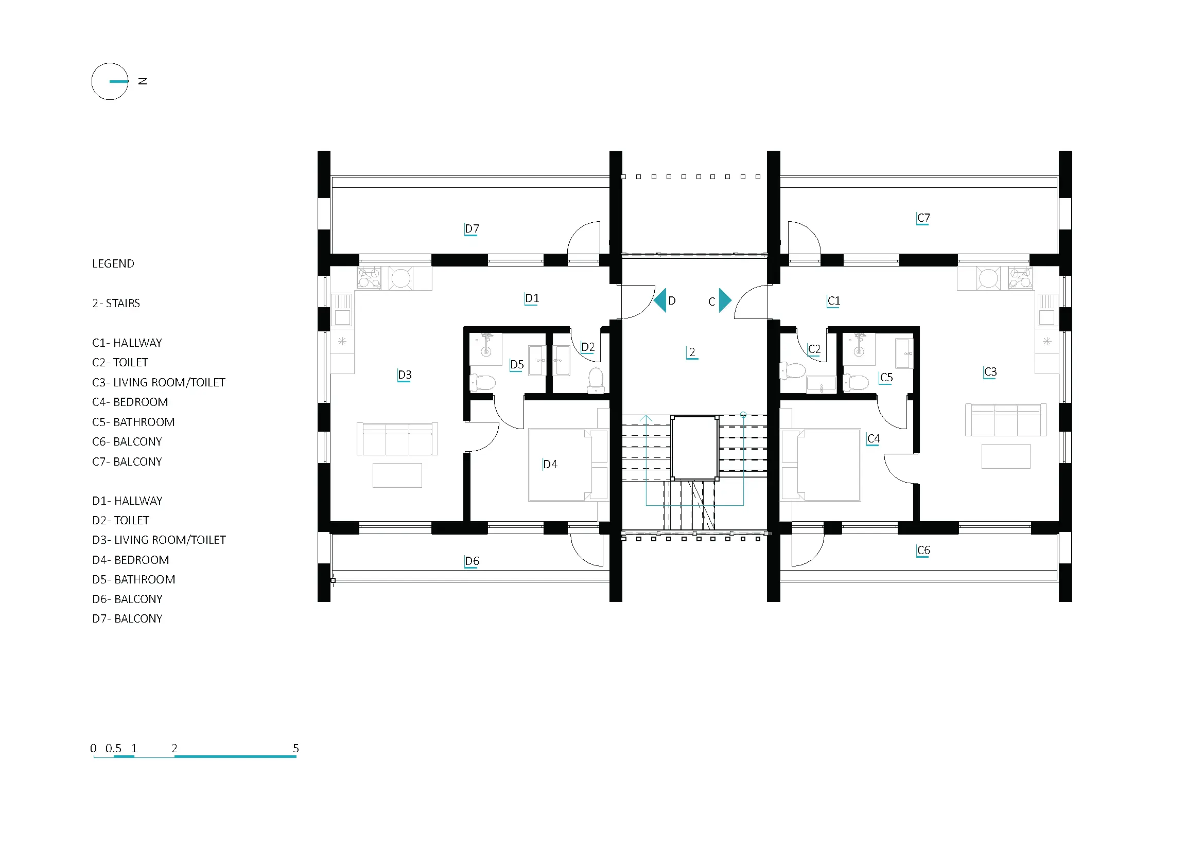
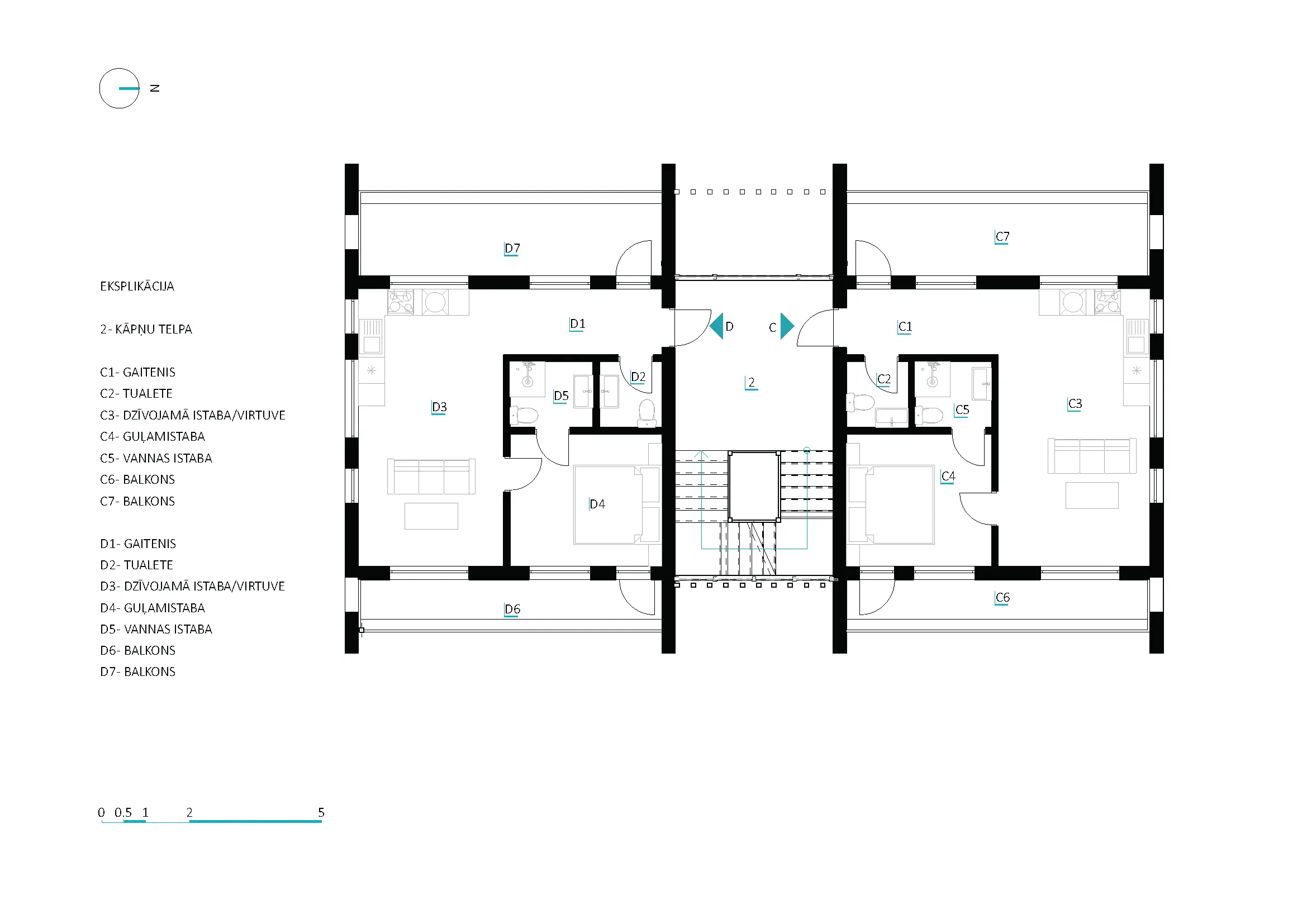
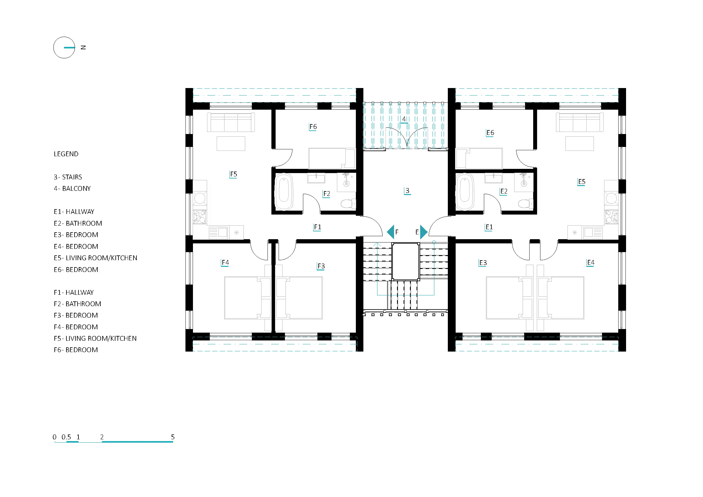
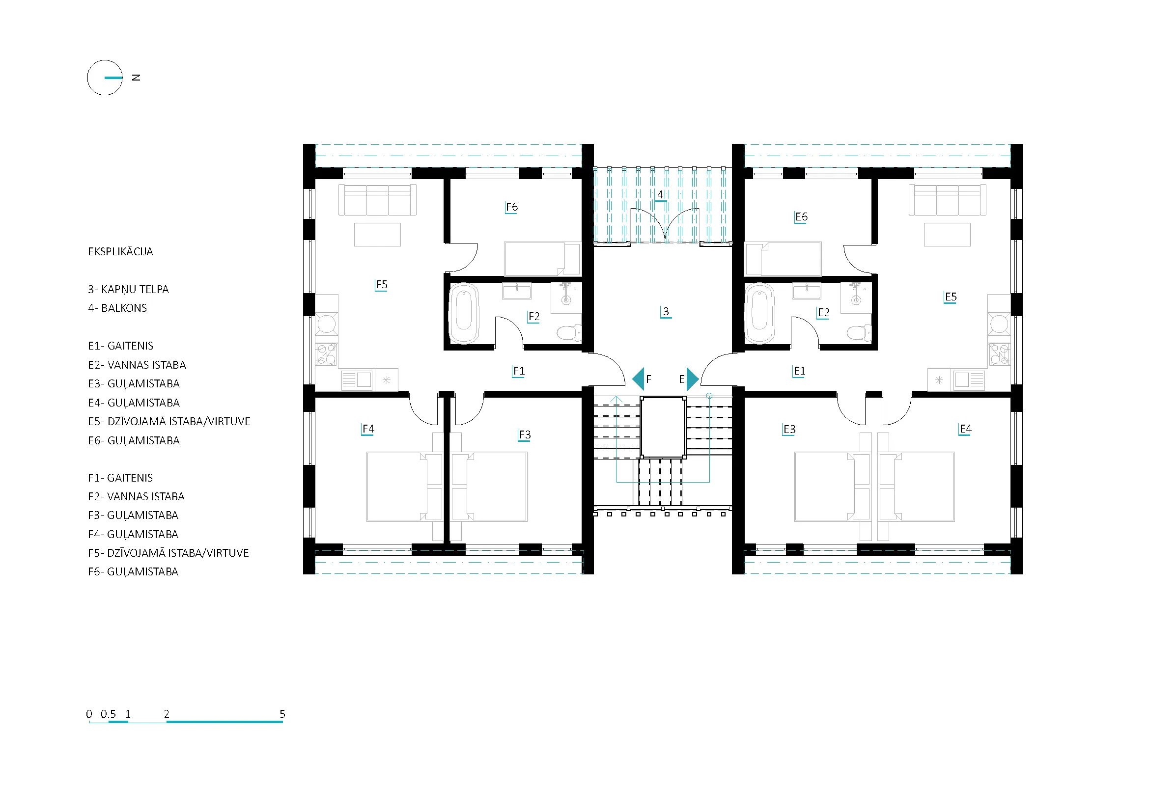
Pēc klienta lūguma, 3D AD izstrādāja projekta vizuālo un plānojuma koncepciju, ar ko varētu uzrunāt gan potenciālos investorus, gan iespējamos topošos īpasniekus, projekta tālākai attīstībai. Tika izstrādāts vizuāls materiāls, kas parāda gan ēkas ārejo tēlu gan izskaidro tās iespējamo iekšejo plānojumu.
Gala rezultātā Klienta vēlme tika izpildīta sasniedzot gan vēlamo vizuāli moderno ēkas veidolu, gan ekonomisku un ergonomisku risinājumu. Kā vienu no galvenajiem plus-punktiem, projekta koncepts ietver arī atvērtu plānojumu ar centrālu kāpņu telpu. Šāds plānojums ļauj lielu brīvību ēkas pārplānošanā, sadalīšanā un paplašināšanā, dodot lielāku izvēles brīvību visām iesaistītajām pusēm, sniedzot labāko gala variantu.
GALERIJA












