Matīsa iela 46
Projekta mērķis:
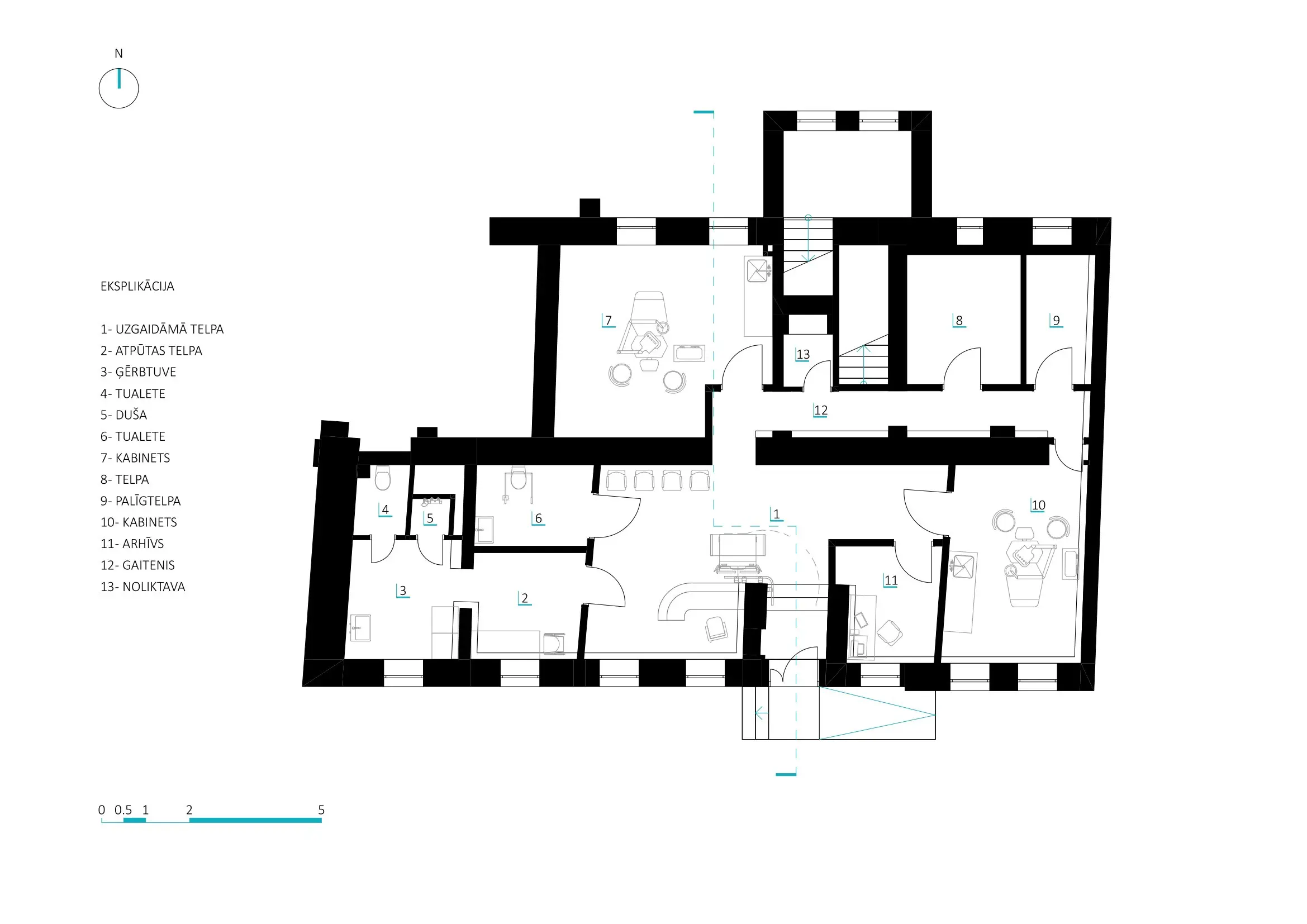
Projektēt zobārstniecības klīniku esošās vēsturiskas ēkas komerciālās telpās. Projektam jāietver pacientu uzņemšana, operācijas zāle, rentgena telpa, sanitārā telpa, darbinieku telpas u.c. funkciju pabalstošās telpas, vienlaicīgi ņemot vērā esošās platības gabarītu limitācijas.
Gala rezultāts:
Izstrādāts risinājums, izanalizējot esošo koptelpu, izstrādājot vairākus potenciālos telpu izkāŗtojumus. Tika ņemti vērā ne tikai klienta uzstādījumi, bet arī normatīvo aktu prasības. Plānojumu ierobežoja esošā vidējā mūra siena, un pakāpieni pie ieejas klīnikā.
Gala rezultātā izstrādātais risinājums vairākkārt pārrunāts ar klientu, un pat koriģēts būvniecības laikā, lai panāktu optimālu telpu platību. Esošā kopējā platība ir salīdzinoši maza, priekš vēlamās telpu komplektācijas. Mūsu komandai izdevās atrast vēlamo risinājumu, praktiski neupurējot neko no vēlamās komplektācijas.
GALERIJA





