Ģertrūdes 125
Projekta mērķis:
Izstrādāt ēkas atjaunošanas projektu, kura ietvaros tiek lietderīgi pārdalīts telpu iekšejais plānojums, un izcelta abu ēku vēsturisko fasāžu detalizācija. Projekta ietvaros pārplānotās telpas, pārbūvēt par moderniem augstas klases dzīvokļiem. Ēkas kādreizējais īpašnieks abas ēkas nokrāsojis vienveidīgā tonī, maskējot ēkas skaistumu un apvienojot abas ēkas apjomus vienotā blokā. Fasādes jāsadala un jāizceļ katras ēkas arhitektoniskās aprises.
Gala rezultāts:
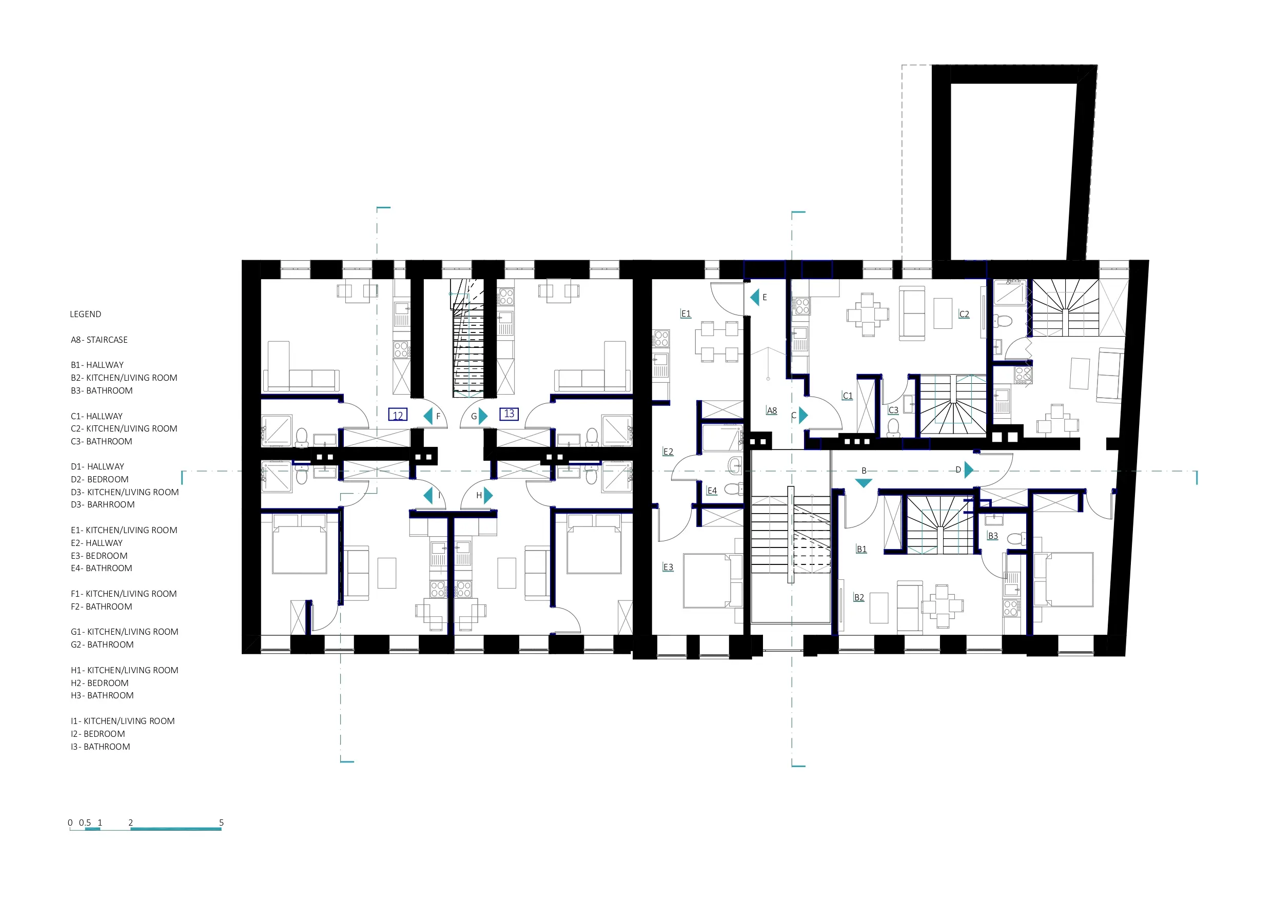
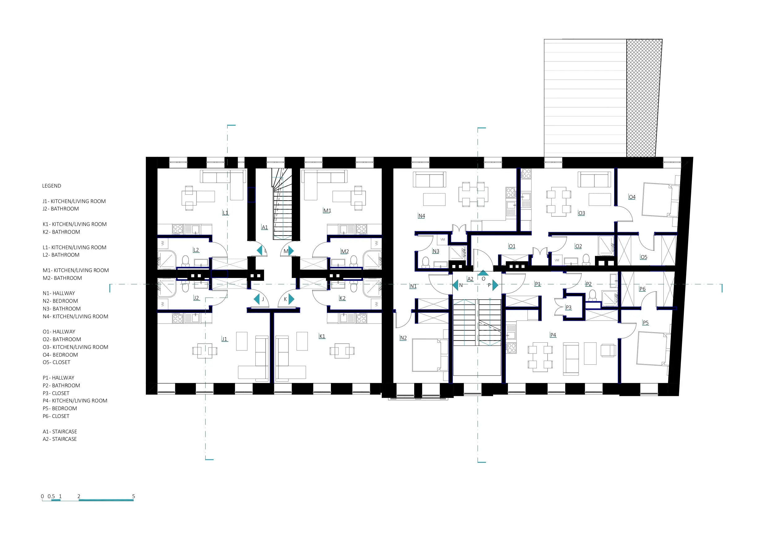
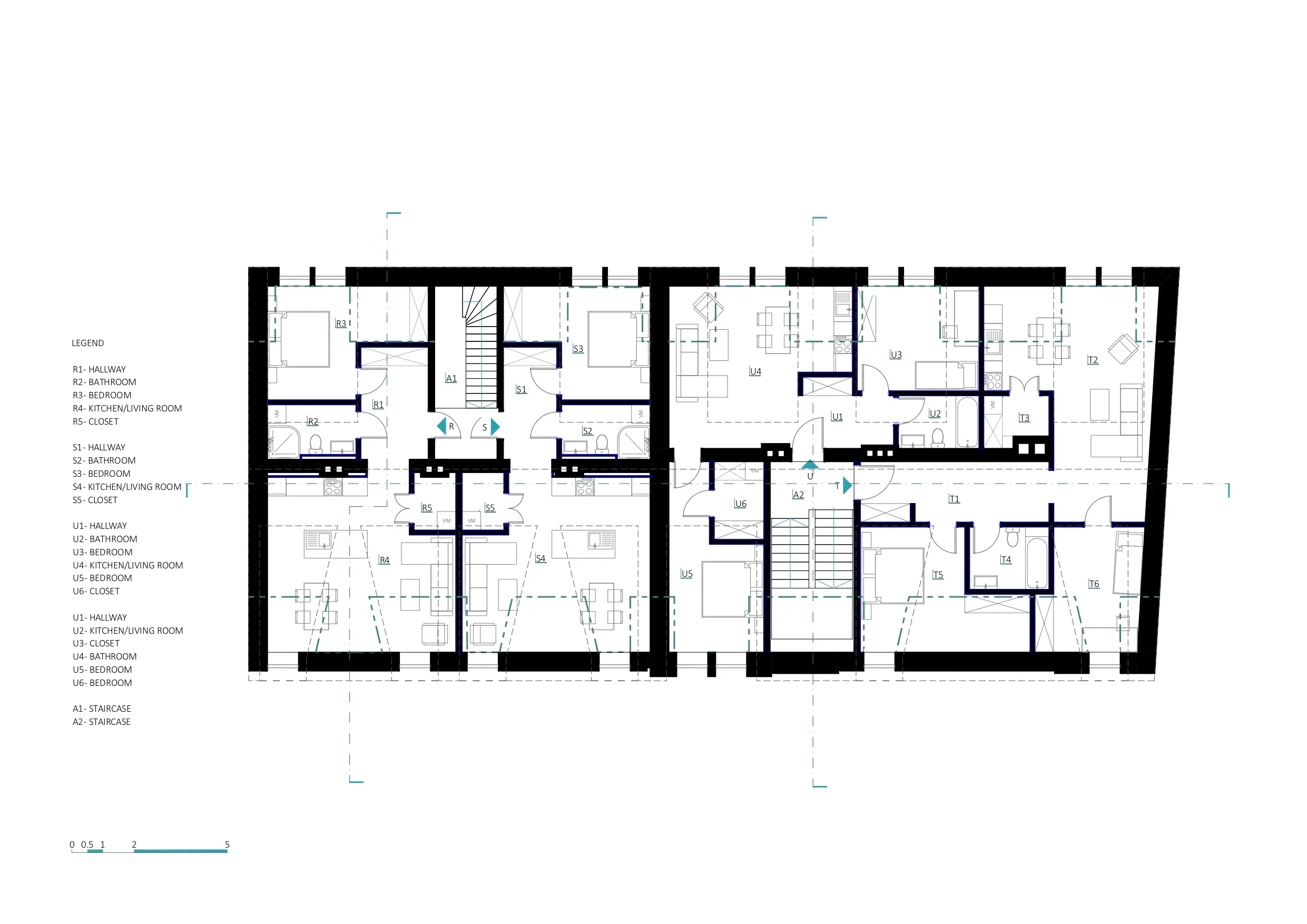
Ēkas sliktā tehniskā stāvokļa dēļ daudz ēkas konstruktīvie elementi ir jāpārbūvē. Tas pavēra potenciālu radošai un lietderīgai ēkas iekšējai pārplānošanai. Tajā skaitā esošā nelietderīgā mansarda stāva pārbūve par lietderīgiem dzīvokļiem, kā arī pagrabstāva pārseguma pārbūvi, atverot jaunas zonas, divstāvīgu dzīvokļu izbūvei. Vienlaikus, ēkas gabarīti un nesošo elementu izvietojums dod iespēju izvietot individuālus un unikālus dzīvokļus katra gaumei.
Gala rezultātā projekts paredz 16 jaunu dzīvokļu izveidi, no kuriem 3 divstāvīgi, un 4 lielas platības mansarda dzīvokļi. Ēkas fasādes atjaunos sadalot un izceļot abu indivuduālo ēku arhitektūru. Vienlaicīgi pārbūvēts jumts, peivienojot klasiskas jumta logu izbūves, dodot mansarda stāvam lietderību, un jumtam klasisku eleganci.
GALERIJA








